Helle 4-Zi.-DG-Wohnung im 16. Bezirk!
1160 Wien, Dachgeschoß zur Miete
Kontaktdaten
-
NameHerr Niklas Brey
-
FirmaWhiteBrick Immo GmbH
-
AdresseWallrißstraße 8 / 2a
1180 Wien -
E-Mail Direkt
-
Tel. Zentrale
Objektdaten
-
Objekt ID606
-
ObjekttypenDachgeschoß, Wohnung
-
Adresse(Wilhelminenspital, Wilhelminenberg)
1160 Wien
Wien -
Wohnfläche ca.128,06 m²
-
Zimmer4,5
-
Badezimmer1
-
Separate WC1
-
KücheOffene Küche
-
Zustandvollsaniert
-
Maximalmietdauer5 Jahre
-
Stellplätze gesamt2
-
Stellplätze2
-
MieterprovisionGemäß Erstauftraggeberprinzip bezahlt der Abgeber die Provision.
-
Kaution3 Bruttomonatsmieten
-
Miete pro m²12,96 EUR
-
Summe Miete netto1.660,00 EUR
-
Betriebskosten netto271,36 EUR
-
Betriebskosten MwSt.27,14 EUR
-
Gesamtmiete netto1.931,36 EUR
-
Gesamtmiete MwSt.27,14 EUR
-
Gesamtmiete1.958,50 EUR
Ausstattung / Merkmale
- ✓ Badewanne
- ✓ Fliesenboden
- ✓ Garage
- ✓ Neubau
- ✓ Offene Küche
- ✓ Parkettboden
- ✓ Personenaufzug
- ✓ Separates WC
Objektbeschreibung
Zur Vermietung gelangt diese wunderschöne 4-Zi.-Dachgeschoß-Wohnung, in guter Lage des 16. Bezirks. Das Objekt eignet sich ideal für Jungfamilien oder auch für eine WG-Nutzung, da die Wohnung über drei getrennte Schlafzimmer verfügt.
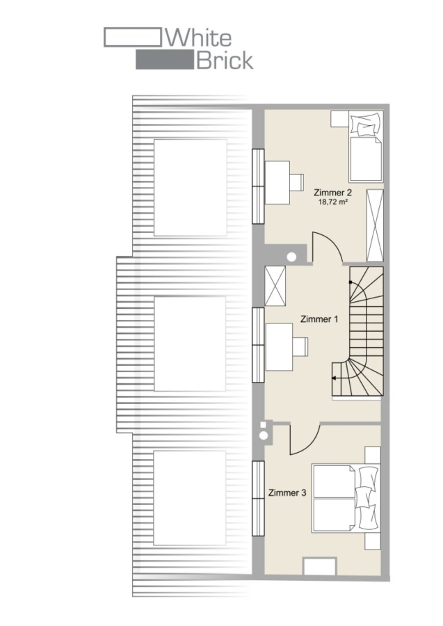
Die Wohnung verfügt insgesamt über eine Fläche von ca. 128m2 und gliedert sich über zwei Etagen:
Etage 1:
- Vorraum
- großes Wohnzimmer mit Küchennische
- Schlafzimmer 1
- Badezimmer
- separater Abstellraum
- getrennte Toilette
Etage 2:
- Durchgangszimmer
- Schlafzimmer 2
- Schlafzimmer 3
Das großzügige Objekt liegt im Dachgeschoß und verzaubert durch seine Helligkeit. Die Wohnung befindet sich in einem ausgezeichneten Zustand, der Nassraum wurde mit modernen Fliesen ausgestattet. In der Küche wurde eine Küchenzeile installiert.
Die praktische Raumaufteilung mit großem Wohnraum sowie drei getrennt begehbaren Zimmern wird sowohl Pärchen als auch Singles begeistern. Die Wohnung eignet sich auch perfekt für eine WG.
Es besteht die Möglichkeit Stellplätze in der hauseigenen Garage anzumieten.
Die Verkehrsanbindung dieser Immobilie ist hervorragend. Sie haben eine Vielzahl von öffentlichen Verkehrsmitteln zur Auswahl, Straßenbahn & U-Bahn. In der Nähe finden Sie alles, was Sie für den täglichen Bedarf brauchen.
Ob Restaurant oder Cafes - alles ist bequem zu Fuß oder mit dem Fahrrad erreichbar. Auch für Ihre Einkäufe haben Sie eine große Auswahl an Supermärkten und Bäckereien in der Nähe.
Bewohner dieses "Grätzels" möchten die vielen Vorteile dieser Lage nichtmehr missen. Nutzen Sie diese seltene Gelegenheit und vereinbaren Sie einen Besichtigungstermin.
Kontaktieren Sie uns & überzeugen Sie sich selbst von der Qualität dieser Immobilie. Besichtigungstermin sind gerne auch am Wochenende möglich.
Gerne senden wir Ihnen auf Anfrage alle weiteren Informationen zu.
Wir weisen darauf hin das zu sämtlichen Abgebern ein wirtschaftliches Nahverhältnis besteht. Eine Garantie auf Richtigkeit und Vollständigkeit können wir nicht übernehmen.
Hinweis gemäß Energieausweisvorlagegesetz: Ein Energieausweis wurde vom Eigentümer bzw. Verkäufer, nach unserer Aufklärung über die generell geltende Vorlagepflicht, sowie Aufforderung zu seiner Erstellung noch nicht vorgelegt. Daher gilt zumindest eine dem Alter und der Art des Gebäudes entsprechende Gesamtenergieeffizienz als vereinbart. Wir übernehmen keinerlei Gewähr oder Haftung für die tatsächliche Energieeffizienz der angebotenen Immobilie.
Der Immobilienmakler erklärt, dass er – entgegen dem in der Immobilienwirtschaft üblichen Geschäftsgebrauch des Doppelmaklers – einseitig nur für den Vermieter tätig ist.
Lage
Wilhelminenspital, Wilhelminenberg
Bus 500 m | Straßenbahn 500 m | U-Bahn 500 m | Bahnhof 500 m | Autobahnanschluss 5,50 km | Supermarkt 500 m | Bäckerei 500 m | Einkaufszentrum 1 km | Ärzte 500 m | Apotheke 500 m | Krankenhaus 500 m | Klink 500 m | Schule 500 m | Kindergarten 500 m | Universität 1,50 km | Höhere Schule 1,50 km | Bank 500 m | Post 500 m | Polizei 500 m | Geldautomat 500 m
Die dargestellte Position der Immobilie ist nur eine ungefähre Angabe.


























