Schnäppchen! 3.5-Zimmer Altbau-Erstbezug in TOPLAGE | Kaiserstraße – 7. Bezirk
1070 Wien,Neubau, Etagenwohnung zum Kauf
Kontaktdaten
-
NameHerr Benedikt Graf
-
PositionImmobilienberater
-
FirmaWhiteBrick Immo GmbH
-
AnschriftSchöffelgasse 48 / 1
1180 Wien -
E-Mail
-
Telefon
Objektdaten
-
Objekt-ID629
-
ObjekttypenEtagenwohnung, Wohnung
-
Adresse1070 Wien,Neubau
(Lerchenfelder Straße, Kaiserstraße)
Wien -
Etage3
-
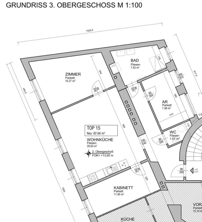
Wohnfläche ca.82,66 m²
-
Zimmer3,5
-
Badezimmer1
-
Separate WC1
-
HeizungsartEtagenheizung
-
Wesentlicher EnergieträgerGas
-
Baujahr1900
-
Letzte Modernisierung2025
-
ZustandErstbezug
-
BauweiseMassiv
-
Heizwärmebedarf (HWB)123,40 kWh/(m²·a) (Klasse D)
-
Gesamtenergieeffizienz-Faktor (fGEE)2,20 (Klasse D)
-
Käuferprovision3 % des Kaufpreises zzgl. 20 % USt.
-
Monatliche Kosten netto250,00 EUR
-
Monatliche Kosten MwSt.25,00 EUR
-
Monatliche Kosten brutto275,00 EUR
-
Kaufpreis484.000 EUR
-
Betriebskosten netto250,00 EUR
-
Betriebskosten MwSt.25,00 EUR
Ausstattung / Merkmale
- ✓ Altbau
- ✓ Fliesenboden
- ✓ Massivbauweise
- ✓ Parkettboden
- ✓ Personenaufzug
- ✓ Separates WC
Objektbeschreibung
Zum Verkauf gelangt eine wunderschöne, komplett sanierte 3,5-Zimmer-Wohnung in beliebter Lage des 7.Bezirks.
Perfekt für ein Pärchen, eine WG oder eine Jungfamilie.
Das schöne Jahrhundertwendehaus befindet sich in unmittelbarer Nähe zur Lerchenfelderstraße und der U6-Station Thaliastraße.
Die Wohnung liegt im 3.Liftstock und verzaubert durch ihre praktische Aufteilung und die hochwertige Ausstattung, bei der man die Liebe für Details sofort erkennt. Die Echtholz Eichen-Dielen, die neuen Holz-Türen, sowie die ebenerdige Dusch sind nur ein Auszug der qualitativen Ausstattung.
Nurmehr selten gibt es hochwertig sanierte Altbau-Wohnungen in dieser zentralen Lage zu fairen Preisen.
Aufteilung
- Vorraum/Gang: 10,08 m²
- Wohnzimmer: 28,03 m² (mit Anschlüssen für Wohnküche)
- Schlafzimmer 1: 16,27 m²
- Schlafzimmer 2: 11 m²
- Abstellraum: 7,98 m²
- Bad: 7,63 m² mit Dusche und Waschmaschinen-Anschluss
- Wc: 1,67 m²
Lage:
Das Haus befindet sich nur 1 Gehminute von der U6-Station Thaliastraße entfernt mit sehr guter öffentlicher Anbindung.
In unmittelbarer Nähe befinden sich Lebensmittelgeschäfte sowie Restaraunts und Cafés.
Bewohner dieses "Grätzels" möchten die vielen Vorteile dieser Lage nichtmehr missen. Nutzen Sie diese seltene Gelegenheit und vereinbaren Sie einen Besichtigungstermin.
Bei Interesse an dem Objekt freuen wir uns auf Ihre Anfrage. Der Ordnung halber halten wir fest, dass nur vollständige Anfragen mit Vor-und Zunamen, sowie mit gültiger Mobilnummer beantwortet werden.
Kontaktieren Sie uns & überzeugen Sie sich selbst von der Qualität dieser Immobilie.
Gerne senden wir Ihnen auf Anfrage alle weiteren Informationen zu.
Wir weisen darauf hin das zu sämtlichen Abgebern ein wirtschaftliches Nahverhältnis besteht. Eine Garantie auf Richtigkeit und Vollständigkeit können wir nicht übernehmen.
Wir weisen darauf hin, dass zwischen dem Vermittler und dem zu vermittelnden Dritten ein familiäres oder wirtschaftliches Naheverhältnis besteht.
Der Vermittler ist als Doppelmakler tätig.
Lage
Lerchenfelderstraße und U6-Station Thaliastraße
Bus 500 m | Straßenbahn 500 m | U-Bahn 500 m | Bahnhof 500 m | Autobahnanschluss 4 km | Supermarkt 500 m | Bäckerei 500 m | Einkaufszentrum 1 km | Ärzte 500 m | Apotheke 500 m | Krankenhaus 1 km | Klink 500 m | Schule 500 m | Kindergarten 500 m | Universität 1 km | Höhere Schule 500 m | Bank 500 m | Post 500 m | Polizei 500 m | Geldautomat 500 m
Die dargestellte Position der Immobilie ist nur eine ungefähre Angabe.














